Projetos de Hidro-Sanitária e Drenagem
By wp_admin / December 27, 2025 / No Comments

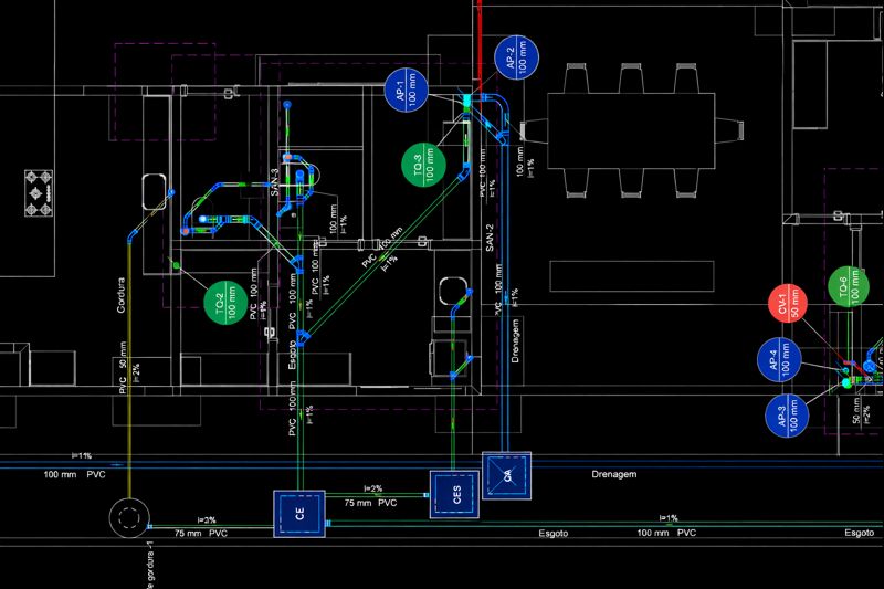
Hidráulica – Água Fria e Quente:
Projetamos sistemas de água fria e água quente com foco em segurança, eficiência e conforto dos usuários. Os dimensionamentos consideram pressões, vazões, perdas de carga e especificação adequada dos materiais. As soluções adotadas priorizam durabilidade, economia de consumo e facilidade de manutenção, sempre em conformidade com as normas técnicas vigentes.
Instalações Sanitárias:
Desenvolvemos projetos de esgoto sanitário com critérios técnicos rigorosos, assegurando escoamento eficiente, ventilação adequada e prevenção de retornos e odores. Os sistemas são dimensionados considerando declividades, diâmetros e interligações corretas. As soluções garantem funcionamento adequado, facilidade de execução e integração com os demais sistemas da edificação.


Drenagem Pluvial:
Elaboramos projetos de drenagem pluvial visando o correto escoamento das águas de chuva, prevenindo alagamentos, infiltrações e sobrecargas. Os sistemas são dimensionados considerando áreas de contribuição, chuvas de projeto e capacidade de condução. As soluções adotadas garantem eficiência hidráulica e durabilidade das instalações.
Compatibilização Estrutural e Hidráulica:
Realizamos a compatibilização completa entre projetos estruturais e hidráulicos, garantindo o correto posicionamento das tubulações sem comprometer a segurança estrutural da edificação. Como também desenvolvemos os cálculos estruturais, os encaminhamentos hidráulicos são definidos de forma técnica e planejada, evitando furações indevidas em vigas, lajes e pilares.
Essa integração permite soluções mais eficientes em obra, reduz retrabalhos, melhora a execução e assegura conformidade com os critérios estruturais e normativos, resultando em maior qualidade e confiabilidade do projeto final.


Integração BIM e Modelagem 3D:
Utilizamos tecnologia BIM e modelagem 3D para integrar projetos estruturais e de instalações, promovendo compatibilização precisa e redução de interferências em obra. A modelagem permite melhor visualização dos sistemas e maior previsibilidade construtiva. Essa abordagem contribui para menos retrabalho, melhor planejamento e maior controle de custos.